HELUZ Triumf - originální varianta

Popis projektu

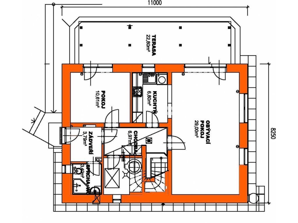
Heluz Triumf - spadá díky použitým materiálům HELUZ do řady pasivních domů. Přes vstupní zádveří, kde je vstup do WC se sprchovým koutem,vcházíme do chodby, která tvoří hlavní komunikační prostor domu. Z chodby je přístupná kuchyň, obývací pokoj a technická místnost. Kuchyň je z obývacím pokojem vzájemně propojena. V chodbě je umístěno schodiště, které spojuje přízemí s poschodím. Na poschodí se prochází přes chodbu do dvou dětských pokojů, ložnice, šatny, koupelny a WC se sprchovým koutem. Cenu projektu v pasivním standardu sdělíme na dotaz.

Cena projektu
45 800

Výměry

Obytná plocha:  82.00
Užitná plocha:  127.40
Zastavěná plocha:  88.69
Obestavěný prostor:  649
Šířka domu:  8.25 m
Délka domu:  11 m

Technické údaje

Počet místností:  5
Počet osob:  5
Výška střechy:  6.90 m
Orientace vstupu:  SV, V
Sklon střechy:  7°

Ceny

Orientační cena na klíč:  0
Orientační cena materiálu:  0
Cena projektu:  45 800
Záloha za projekt:  12 000
Cena bez suterénu:  0
Zákaznická linka +420 572 570 616
Mobil: +420 739 634 457, +420 739 634 458

Chci spočítat
Co chcete?
Chci si objednat

Kontaktujte nás ohledně projektu: HELUZ Triumf

Projekt
Varianta *

Podklady pro stavební povolení

Pro splnění Vyhlášky č. 499/2006 Sb., v platném znění, budete pro stavební úřad potřebovat průvodní zprávu, souhrnnou technickou zprávu, situaci stavby, dokladovou část (výsledky jednání, posudky, stanoviska, průkaz energetické náročnosti).
Tyto části projektové dokumentace souvisí s umístěním domu na konkrétní pozemek, tudíž je nelze do katalogového projektu zahrnout předem a to i včetně ceny za jejich vypracování.
V případě zájmu o tyto podklady od naší firmy, zaškrtněte příslušná políčka.
Podklady může též dopracovat jiná projekční organizace.


Podklady pro stavební povolení
Doplňkové projekty
Platba/záloha *
Odběr projektu *

Kontaktujte nás ohledně projektu: HELUZ Triumf

Pomůže Vám lépe se zorientovat v rozměrech domu. Součástí Malého projektu jsou půdorysy jednotlivých podlaží v měřítku 1:100 s uvedením užitných ploch, pohledy ve stejném měřítku, vstup a výstup inženýrských sítí z a do objektu, průvodní zpráva včetně výměry ploch. Malý projekt Vám usnadní jednání se stavebním úřadem.

Malý projekt
Varianta *

Kontaktujte nás ohledně projektu: HELUZ Triumf

Pro zodpovězení dotazů využijte nabízené úvodní nezávazné a bezplatné konzultace. Konzultaci je možné uskutečnit prostřednictím telefonu, služby Skype nebo osobní schůzkou u nás v kanceláři, případně přímo na konkrétním pozemku.
Při bezplatné konzultaci, vyřešíme Vaše dotazy ohledně úprav a umístění vybraného projektu rodinného domu. Probereme rodinný dům od základů po střechu, včetně použitých materiálů a výrobků.

Zaměření *
Forma konzultace *

Kontaktujte nás ohledně projektu: HELUZ Triumf

Katalog 2026

Katalog rodinných domů představuje ucelený přehled typových i individuálně řešených rodinných domů, které reflektují současné architektonické trendy, technické možnosti i nároky moderního bydlení. Slouží jako inspirační i praktický nástroj pro budoucí stavebníky, kteří hledají kvalitní, funkční a esteticky nadčasové řešení svého bydlení.

Každý dům v katalogu je navržen s důrazem na funkční dispozici, komfort užívání, energetickou efektivitu a citlivé začlenění do okolního prostředí. Projekty jsou koncipovány tak, aby vyhovovaly různým velikostem pozemků, životním stylům i finančním možnostem klientů.

Součástí katalogu jsou:

  • přehledné architektonické vizualizace exteriérů a interiérů
  • základní technické údaje (užitná plocha, dispozice, typ střechy)
  • informace o konstrukčním a materiálovém řešení

Domy jsou rozděleny do tematických kategorií, například tradiční domy, moderní domy, trendové domy nebo domy nové generace, což umožňuje snadnou orientaci a výběr podle osobních preferencí. Důraz je kladen také na udržitelnost, nízké provozní náklady a využití moderních technologií, jako jsou tepelná čerpadla, fotovoltaické systémy či rekuperační větrání.

Katalog rodinných domů není jen seznamem projektů, ale průvodcem cestou k vlastnímu bydlení, který pomáhá proměnit představy o ideálním domově v konkrétní a realizovatelný návrh.

Na základě objednávky Vám zašleme na katalog "Katalogové projekty RODINNÝCH DOMŮ 2026".

Cena katalogu je 79,-Kč.

Cena na dobírku:
Poštovné a doběrečné 106,- Kč. Celková cena dobírky 185,- Kč.

Cena při bankovním převodu:
V případě platby bankovním převodem na účet číslo: 27-6688950297/0100 ušetříte doběrečné. Celková cena zásilky do schránky bude činit 140,- Kč. V objednávce zašktrtněte toto políčko a částku uhraďte na výše uvedený účet.  

Chci spočítat

Kontaktujte nás ohledně projektu: HELUZ Triumf

Spočítat materiál - nová služba pro Vás!

S našimi partnery jsme rozšířili spolupráci v nápočtu materiálu pro Vaši stavbu. Tuto službu bychom Vám chtěli nabídnout. Po vyplnění formuláře Vám jednotliví dodavatelé zašlou nápočet požadovaného materiálu a doplňků vycházející z Vašeho projektu.

Materiál

V případě, že máte projektovou dokumentaci od jiné společnosti, zašlete nám půdorysy, řez a pohledy, abychom mohli vypracovat nápočet.

Soubory

Kontaktujte nás ohledně projektu: HELUZ Triumf

Vyplněním požadovaných údajů vybereme opravdu to nejvýhodnější financování Vašeho domu. Na hypotéky, úvěry a ostatní možnosti financování se opravdu specializujeme. Vypočítámě přesně výši měsíční splátky hypotéky s ohledem na Vaše příjmy a výdaje.

Poskytneme nejvýhodnější financování Vašeho domu.
 Kč
 Let
Kontaktní údaje
Jméno*
Příjmení *
Firma
Ulice *
Město *
PSČ *
Země *
E-mail *
Telefon *
Vaše poznámky, dotazy

* Takto označená pole jsou povinná

Nahoru